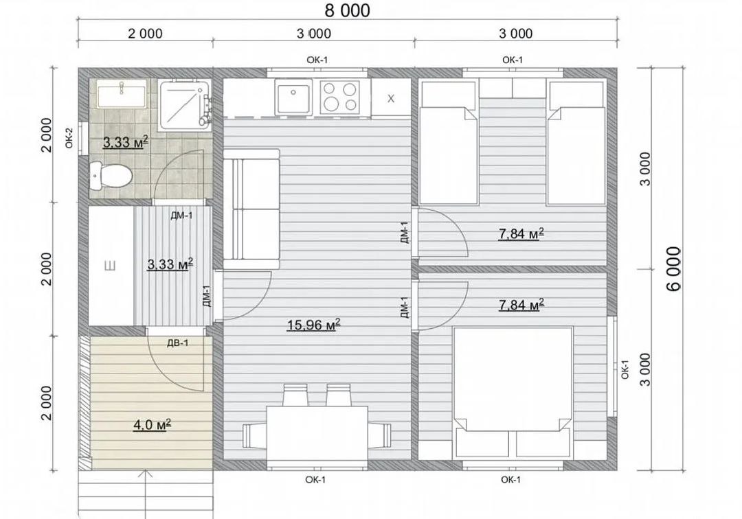
СТРОЙРЕМОНТ 156Компактный одноэтажный каркасный дом 6×8 м с крыльцом, отлично подойдёт для дачи или гостевого дома.
Площадь
48 м²
Размеры
6 × 8
Высота потолков
2.5 м
Цена
По запросу
Каркасный дом площадью 48 м² — практичное решение для сезонного или круглогодичного проживания. Компактные размеры, продуманная планировка и наличие крыльца делают дом удобным для небольшого участка.
Подробная информация о материалах и комплектации
Этажность
1 этаж
Общая площадь
48 м²
Жилая площадь
44 м²
Габариты
6×8 м
Крыльцо
2×2 м
Детальный план расположения комнат

Другие дома, которые могут вас заинтересовать